Leading Scan to BIM Solutions

Converting Point Cloud
to Revit, AutoCAD & SketchUp

We specialize in converting 3D scan data into accurate BIM models, serving construction, renovation, and infrastructure management projects.

1000+ Projects Completed
20+ Trusted Clients
95% Accuracy Rate
Scroll Down

Expert Scan to BIM Team

With over 10 years of experience in BIM and 3D scanning technology, we are proud to be a trusted partner of many leading construction, architecture, and engineering companies.

Our team of engineers is extensively trained in Revit, AutoCAD, and the most advanced Point Cloud processing software, ensuring high-quality deliverables.

High Accuracy (LOD 200-450)
On-Time Delivery
Absolute Data Security
Revit
AutoCAD
ReCap
SketchUp

Comprehensive Solutions

We provide complete Point Cloud conversion services according to international standards

Point Cloud to Revit

Convert 3D scan data into detailed Revit models with complete architectural, structural, and MEP components.

  • Architectural Model LOD 300-400
  • Accurate Structural Model
  • Complete MEP Systems

Point Cloud to SketchUp

Convert Point Cloud data into detailed SketchUp models for visualization and design.

  • 3D Architectural Models
  • Interior Design Models
  • Landscape Modeling

Featured Projects

Explore the Point Cloud conversion projects we have completed

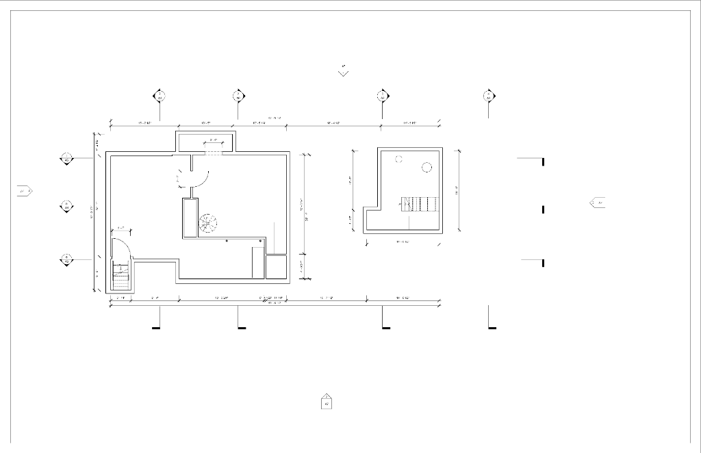
Residential Villa
Revit • Residential

Luxury Residential Villa

Complete 4-floor residential conversion

Area: 10,000 SQF Location: USA Duration: 5 days
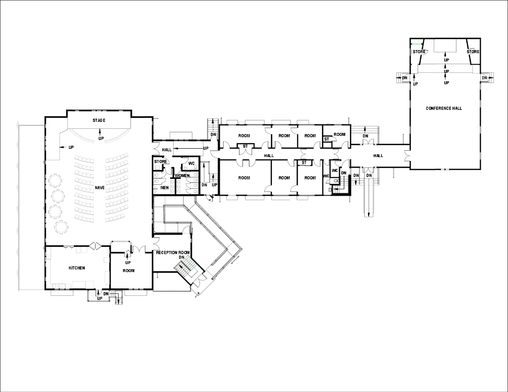
Church Campus
Revit • Commercial

Integrated Church Campus

Complete Point Cloud to Revit conversion

Area: 80,000 SQF Location: USA Duration: 2 weeks
Industrial Warehouse
Revit • Industrial

Industrial Warehouse Complex

Architecture, Structure & MEP modeling

Area: 25,000 m² Location: Germany Duration: 2 weeks
Church Campus CAD
AutoCAD • Commercial

Church Campus CAD Drawings

Complete as-built CAD documentation

Area: 35,000 SQF Location: USA Duration: 1 week
A-Frame Cabin
AutoCAD • Residential

A-Frame Vacation Cabin

Complete construction documentation

Area: 5,000 SQF Location: USA Duration: 1 week
Historic Hotel Building
Revit • Commercial

Historic Hotel Building

4-story historic building conversion

Area: 120,000 SQF Location: USA Duration: 4 weeks
Performing Arts Theater
Revit • Commercial

Performing Arts Theater

Complete scan-to-BIM with LOD 350

Area: 45,000 SQF Location: USA Duration: 3 weeks
Modern Residential Villa
SketchUp • AutoCAD • Residential

Modern Residential Villa

Complete 3D model & CAD documentation

Area: 276 SQM Location: Israel Duration: 4 days
Industrial Processing Facility
Revit • Industrial

Industrial Processing Facility

Point Cloud to Revit with full MEP & Piping

Area: 2,000 SQF Location: USA Duration: 4 days

Start Your Project

Contact us for a free consultation on the right Point Cloud conversion solution for your project.

Address L11 N17 MB2125, Hac Thanh, Thanh Hoa, Viet Nam